Certificat BIM ArchiCAD – Bases & bonnes pratiques
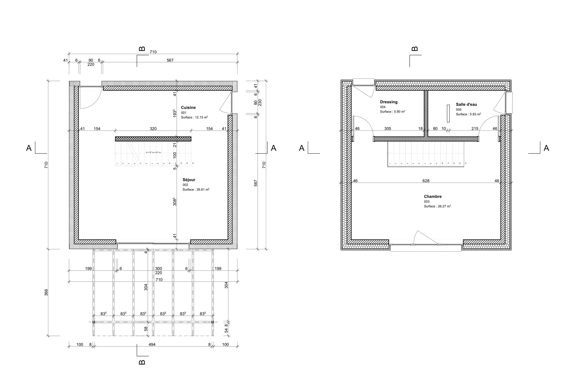
Rez-de-chaussée + étage — 1/50
Coupes A-A + B-B — 1/50
Façades — 1/50
Rendu 3D
Rendu photoréaliste